The maulden is an attractive addition to any garden, the high quality Georgian window and door together with decked terrace make for a great building. This top quality log cabin has 19mm interlocking high grade pine boards to the walls and tongue and groove boards to roof and floor. All timber is Forest Stewardship Council (FSC) certified to produce an environmentally friendly and quality garden building.
The building is supplied untreated.
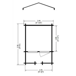
Building dimensions are to the edge of the individual boards that make up the unit and will include the crossover of the logs.
For critical dimensions use the metric values, imperial dimensions are rounded for description only.
Allowance should be made for the roof overhang and for access around the outside during construction and subsequent treatment.
The floor is included.
- 19mm heavy interlocking logs
- Shiplap Tongue and Groove Timber Roof and Floor
- FSC certified timber
- Made in Britain




























Reviews
There are no reviews yet.